物件詳細情報
那須ハイランド(赤松平)中古別荘
| 土地・建物 | 建物 |
|---|---|
| 販売価格 | 6,500万円 |
| 所在地 | 栃木県那須郡那須町大字高久乙字遅山 |
| 種別 | 別荘・一戸建て |
| 土地面積 | 1102.85㎡(333坪) |
| 建物面積 | 291.79㎡(88.26坪) |
| 地目 | 山林 |
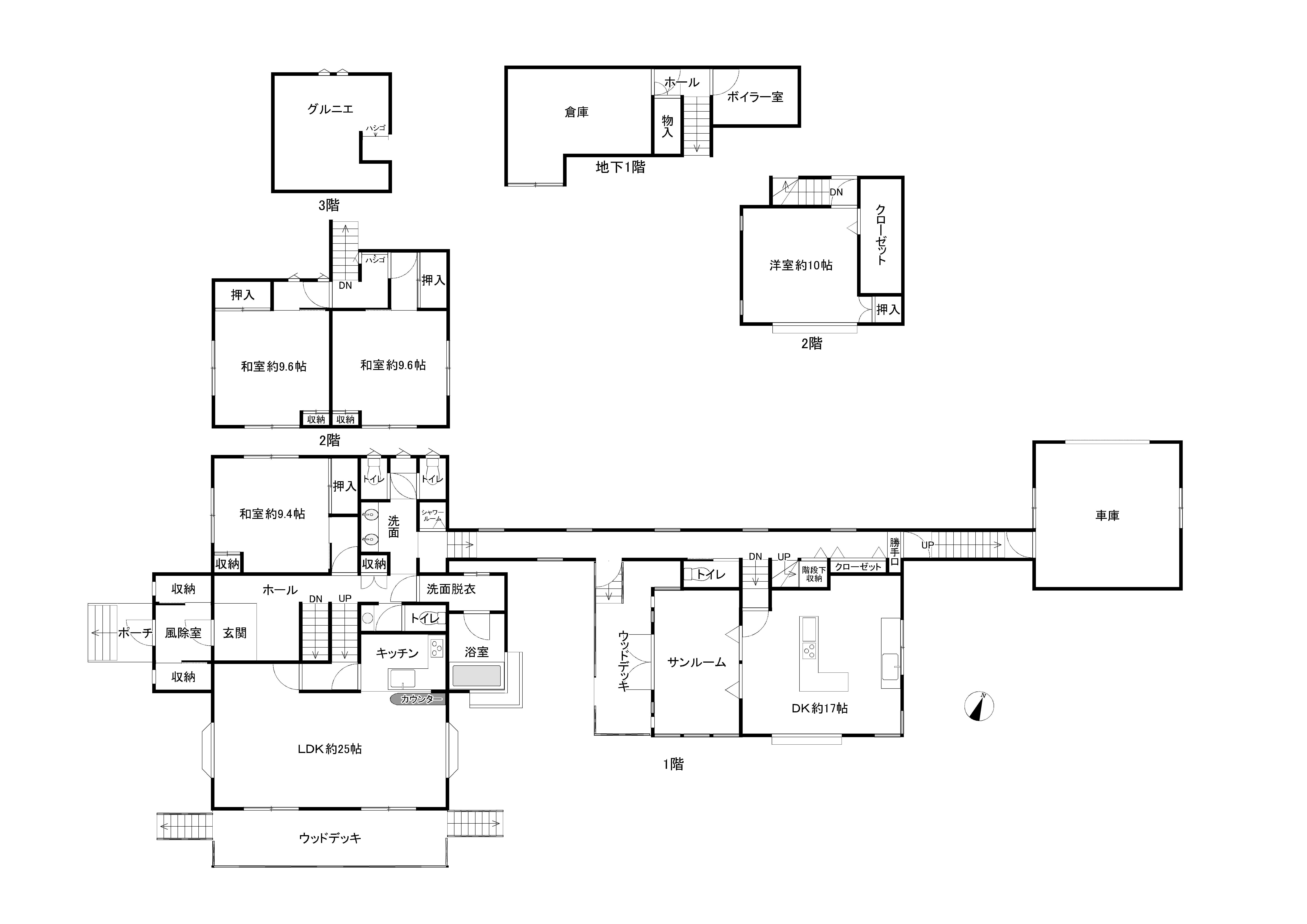
| 間取り | 4LDK+DK+サンルーム+グルニエ+倉庫+車庫 |
| 建物構造 | 木造亜鉛メッキ鋼板・合金メッキ鋼板葺 地上3階 地下1階 |
| 築年月 | 既存部分:1997年7月、増築部分:2020年2月 |
| 取引形態 | 仲介(一般) |
| 建ぺい率 | 20% |
| 容積率 | 40% |
| 共益費(税込) | 60,940 円 / 年間 |
| 水道基本料(税込)※超過料金あり | 36,168 円 / 年間 |
| 温泉基本料金(税込)※個人、別荘利用 | 52,800 円 / 年間 |
| 受湯権譲渡承認料(税込) | 880,000 円 / 一括 |
| 温泉名義人証書書替料(税込) | 11,000 円 / 一括 |
| 都市計画 | 区域内 |
| 設備 | 私営水道、電気、プロパンガス、浄化槽 | 私道負担 | 有(専有) (面積:196.1m2) |
| 接道1 | 方角:南、幅員:7.0m |
| 接道2 | 方角:北西、幅員:6.0m |
| 道路 | 南側幅員約7メートルの町道、北西側幅員約6mの位置指定道路に接する |
| 交通 | 東北自動車道 那須ICより車で約14.2km(約25分) 東北新幹線 那須塩原駅より車で約22.5km(約38分) |
| 駐車場 | 車庫1台、カースペース約2台分 |
| コメント | 那須ハイランド別荘地内の広々とした中古別荘。大人数で使用できます! ☆温泉引込済 ☆2020年にダイニングキッチンや2階洋室、車庫を増築しておりますが、ほとんど利用されていないため綺麗な状態です。既存部分についても2018年にトイレや浴槽、クロス交換、畳張替えなどを行っているため、綺麗な状態を保っております。 ※鍵の手配が必要となるため、内見をご希望の際はご予約をお願いします。 |

